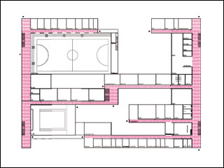
Mit Hilfe einer geeigneten Strategie wurden sämtliche Komponenten einer Schule, wie Klassenräume, Aula, Sporthalle, diverse Aufenthalts-flächen etc. in ein eindeutiges System gebracht.
Durch ein programmorientiertes kammartiges Auseinanderziehen
des Baukörpers, ergeben sich automatisch intelligent aufeinander abgestimmte Innen- und Außenräume.

Februar 2008

Willy Brandt Schule, Warschau

educational spaces* Entwerfen
in Teamarbeit mit Sabine Heinrichs
begleitet von *Prof. Kirsten Schemel

Flurraum
09 l 18